Αποκατάσταση Λαογραφικού Μουσείου Σκοπέλου
11/04/2022






Περιγραφή έργου
Αποκατάσταση Λαογραφικού Μουσείου Σκοπέλου - Νήσος Σκοπέλου, Σκόπελος
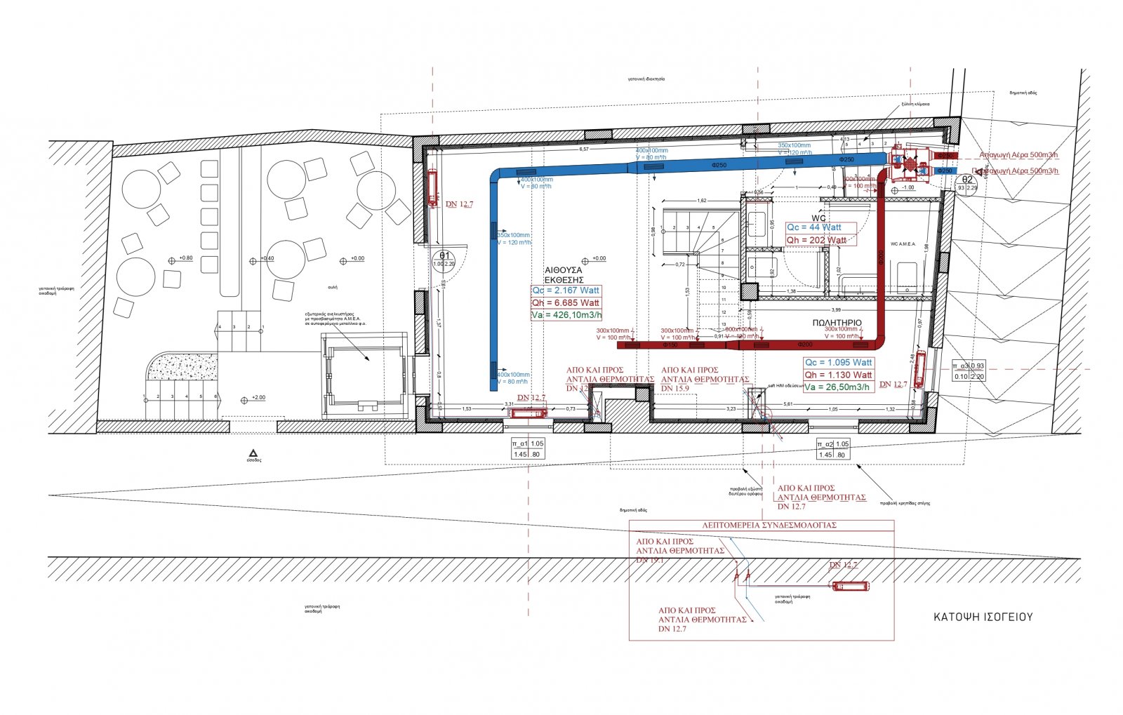
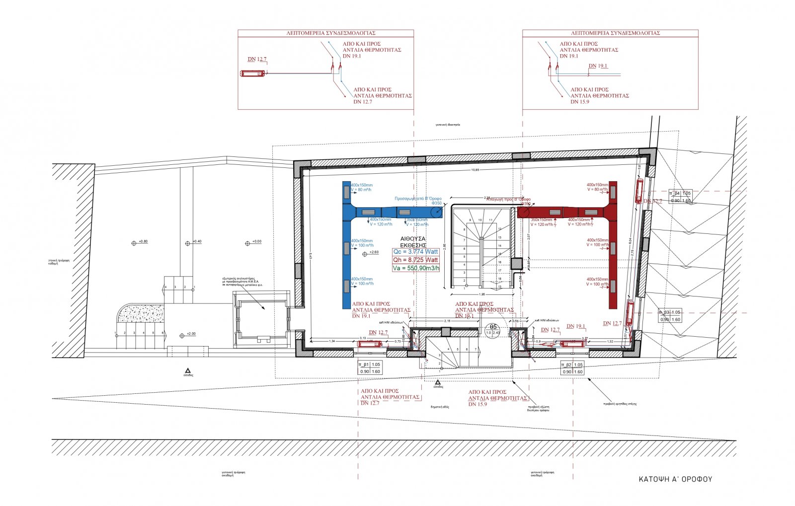
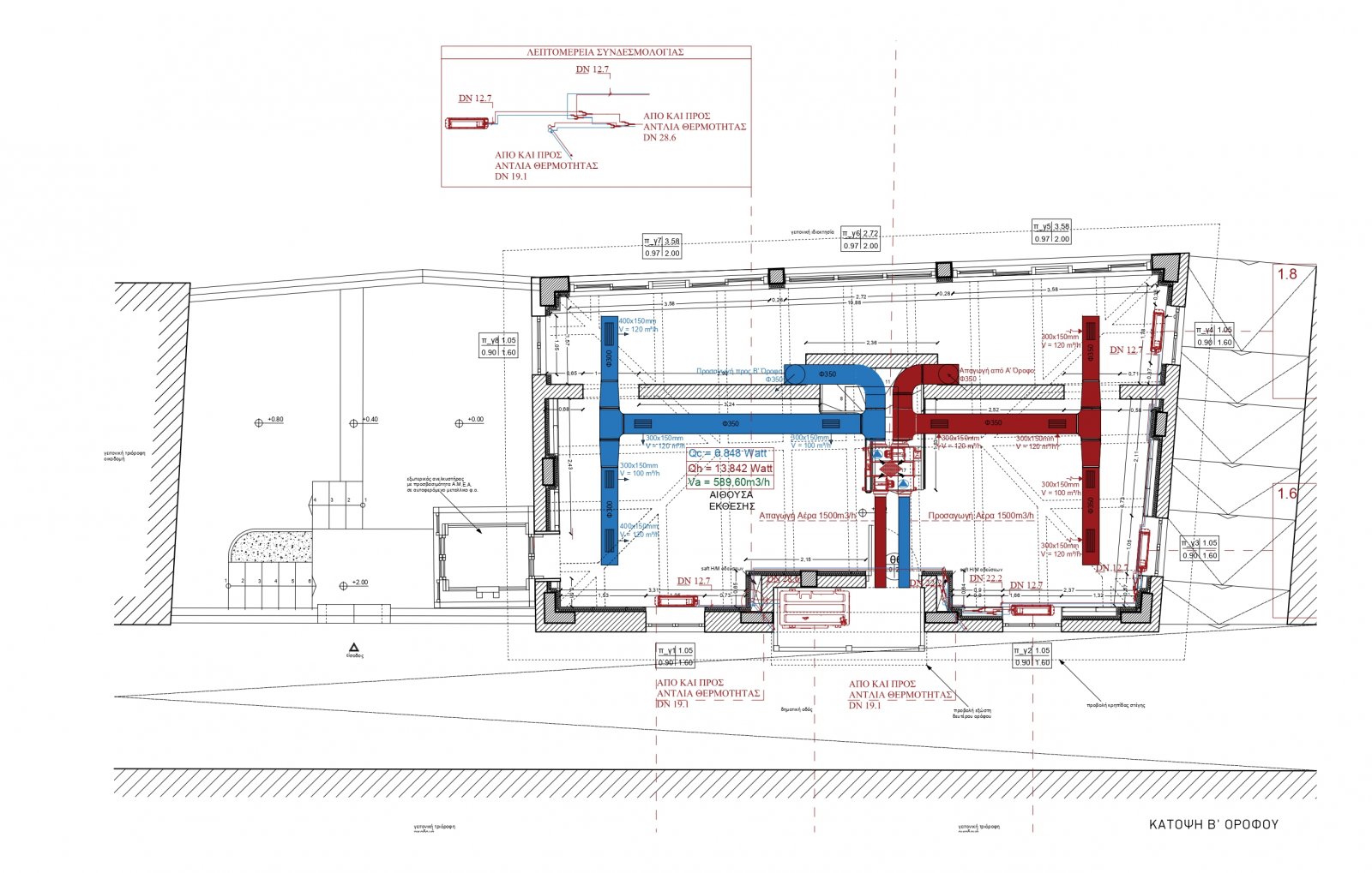
Κλιματισμός
O Κλιματισμός του Μουσείου πραγματοποιήθηκε με Εξωτερική Μονάδα VRV σε συνδυασμό με Επιδαπέδιες Εντοιχισμένες Μονάδες Fancoil VRV.
Μηχανικός Αερισμός
Στις Οροφές του Ισογείου, στον Α` Ορόφου καθώς και στην εμφανή στέγη του Β` Ορόφου του Μουσείου εγκαθίσταται Μηχανικός Αερισμός, μέσω Ημιτοπικών Εναλλακτών Αέρα - Αέρα, οι οποίοι φιλτράρουν και εξαερίζουν τους χώρους μέσω Κυκλικών εμφανών αεραγωγών Λαμαρίνας 4mm με ειδική βαφή Φελλοπολοτου για την ηχομόνωση της Παροχής Αέρα. Οι Εναλλάκτες Αέρα - Αέρα επιτυγχάνουν ανάκτηση Θερμότητας έως και 72%.







