Αποκατάσταση Λαογραφικού Μουσείου ``Αρχοντικό Βακράτσα`` - Νήσος Σκοπέλου, Σκόπελος
10/04/2022






Περιγραφή έργου
Αποκατάσταση Λαογραφικού Μουσείου ``Αρχοντικό Βακράτσα`` - Νήσος Σκοπέλου, Σκόπελος
Κλιματισμός
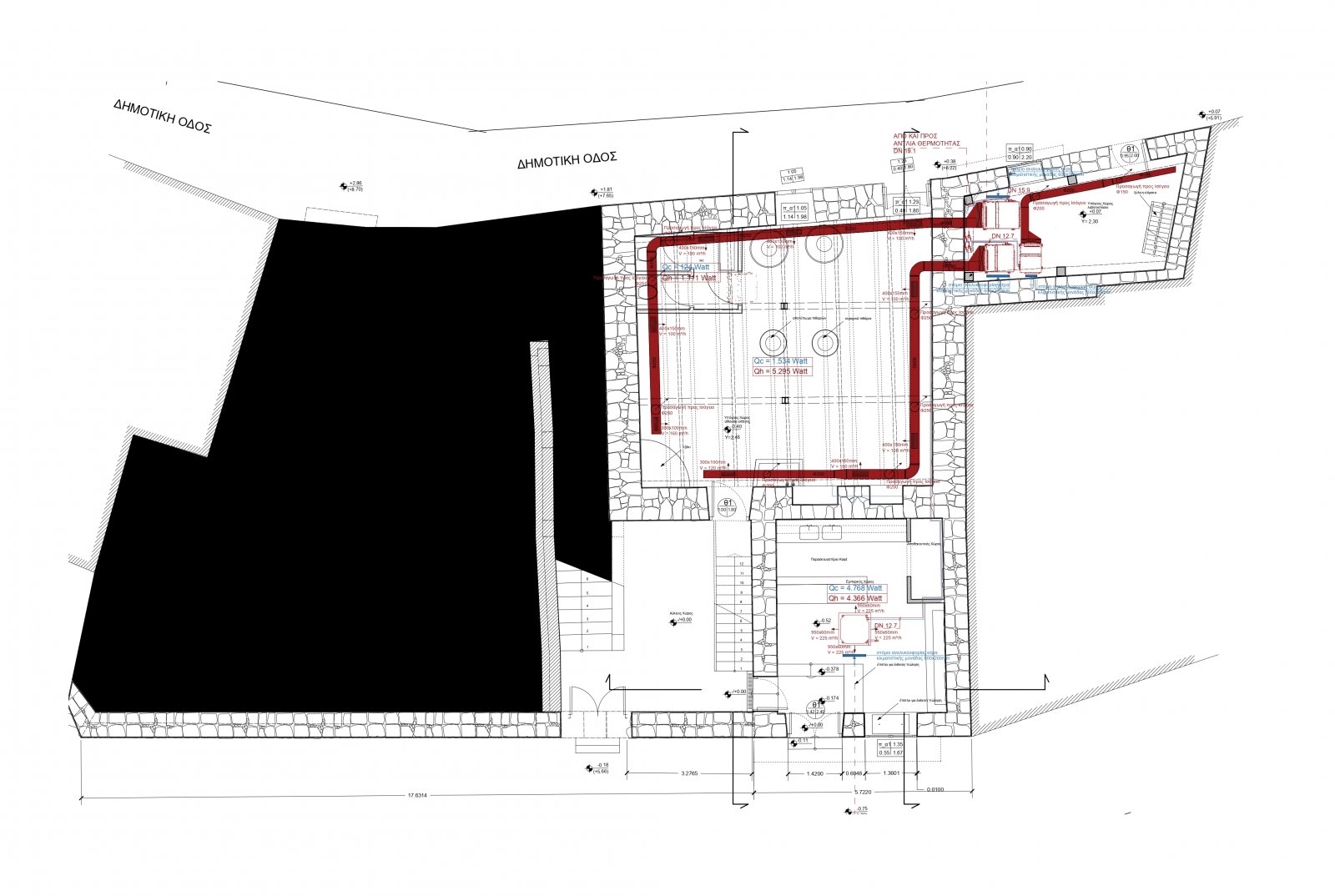
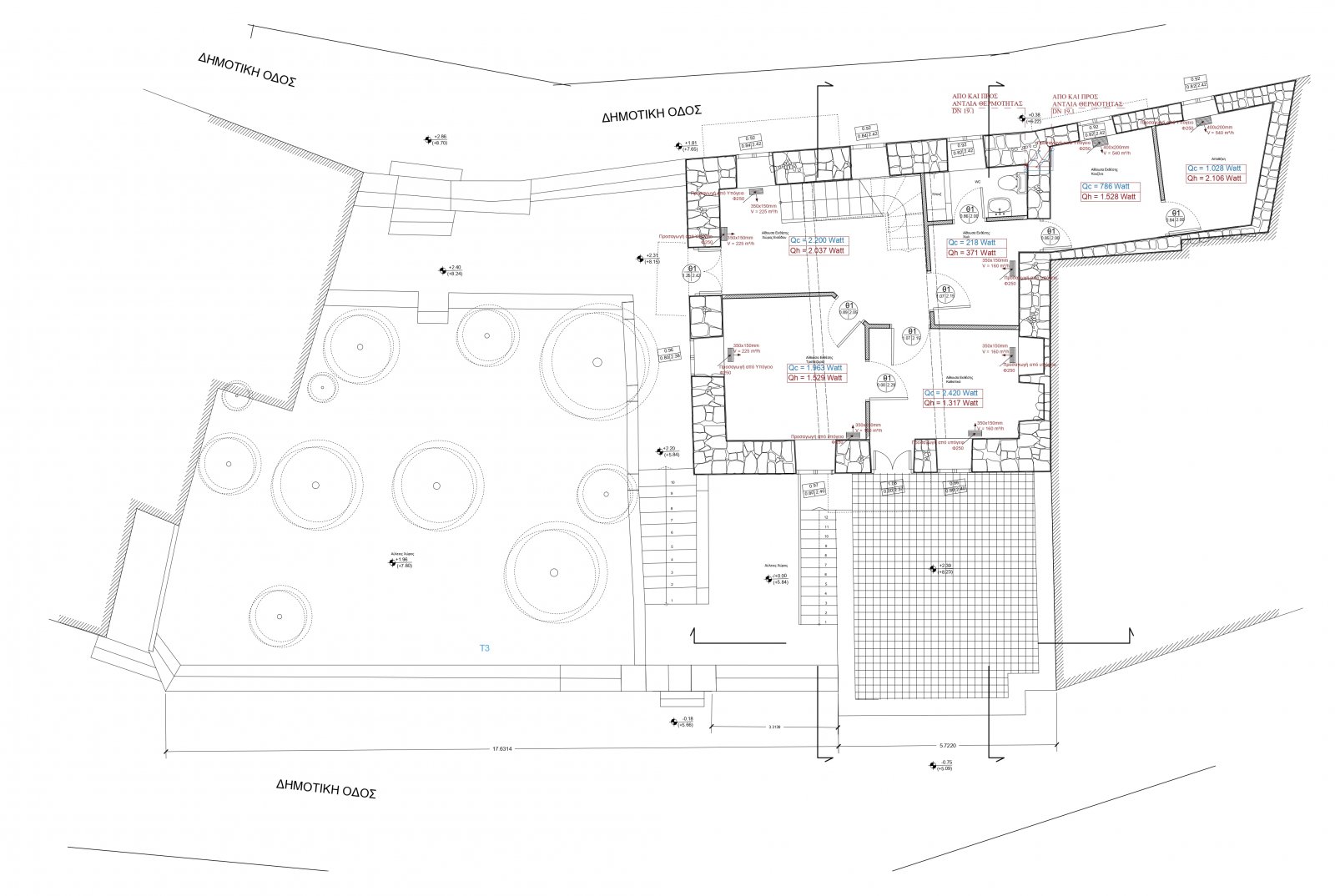
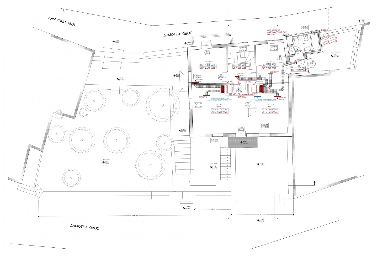
O Κλιματισμός του Μουσείου πραγματοποιήθηκε με Εξωτερική Μονάδα VRV σε συνδυασμό με Καναλάτες Εσωτερικές Μονάδες VRV Ψευδοροφής μέσης Στατικής Πίεσης (χώρος Μουσείου) και κυκλικής ροής τύπου Κασέτα για τον Χώρο του Καταστήματος.
Πιο συσγκεκριμένα στον χώρο του Μουσείου και στο επίπεδο του Υπογείου το Δίκτυο Διανομής πραγματοποιήθηκε μέσω εμφανών αεραγωγών από λαμαρίνα γαλβανιζέ 4mm για την κατανομή του Κλιματιζόμενου αέρα και εξωτερική ειδική βαφή Φελλοπολτού για ηχομόνωση, ενώ οι ίδιοι αεραγωγοί μέσω dumpers και κατακόρυφους αεραγωγούς κλιματίζουν τον χώρο του Ισογείου από επιδαπέδια στόμια γραμμικής προσαγωγής - απαγωγής Αέρα.
Ο χώρος του Ορόφου κλιματίζεται από Καναλάτες Εσωτερικές Μονάδες VRV και το Δίκτυο Διανομής πραγματοποιήθηκε με έυκαμπτους αγωγούς αλουμινίου και στόμια γραμμικής προσαγωγής - απαγωγής Αέρα.







