Νέα Διώροφη Μονοκατοικία με Υπόγειο, Ισόγειο Παράσπιτο, Σοφίτες, Κλειστή Θέση Στάθμευσης και Πισίνα
07/04/2022








Περιγραφή έργου
Νέα Διώροφη Μονοκατοικία με Υπόγειο, Σοφίτες και Πισίνα στην περιοχή του Κατηχωρίου Πηλίου
Ενεργειακή Κατηγορία Κτιρίου: Α
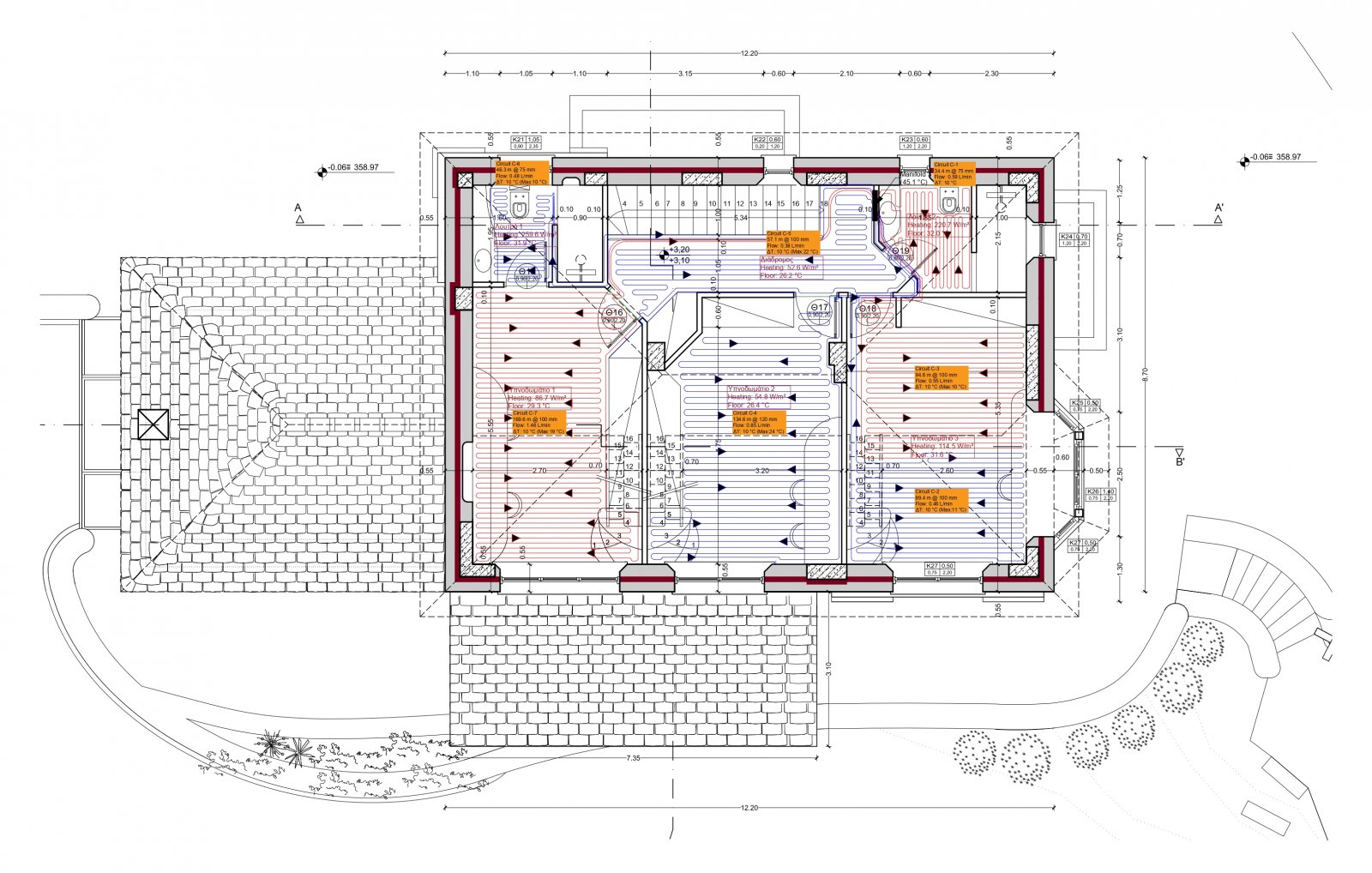
Θέρμανση
Ενδοδαπέδια Θέρμανση και σώματα panel για τα W.C. μέσω Αντλίας Θερμότητας τύπου VRV σε συνεργασία με Υδροδοχεία Εναλλάκτη Ψυκτικού Υγρού. Η Θέρμανση επιτυγχάνεται με την καλύτερη δυνατή κατανομή μέσω Ενδοδαπέδιας Θέρμανσης με χρήση Θερμομπετόν - Στρώση Κατανομής Φορτίου σύμφωνα με DIN 18560.
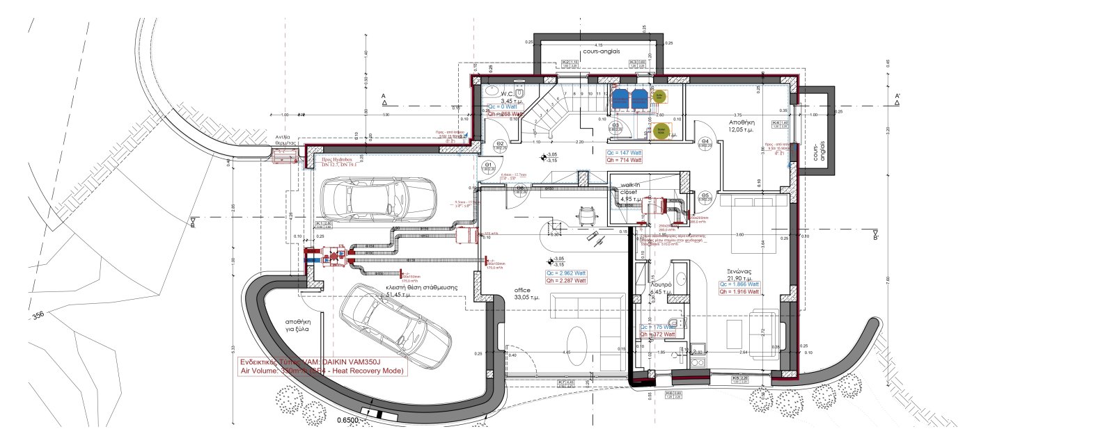
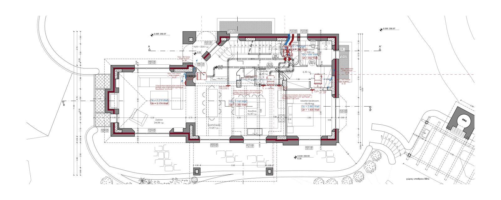
Κλιματισμός
Εσωτερικές Μονάδες VRV Καναλάτες μέσης στατικής πίεσης κατάλληλη για δίκτυα Αεραγωγών.
Μηχανικός Αερισμός
Στους Κύριους χώρους της Κατοικίας εγκαθίσταται Μηχανικός Αερισμός, μέσω Ημιτοπικών Εναλλακτών Αέρα - Αέρα, οι οποίοι τροφοδοτούν με Αεραγωγούς τις Εσωτερικές Μονάδες VRV και οι οποίοι επιτυγχάνουν καθαρισμό και φιλτράρισμα του Εσωτερικού Αέρα των Δωματίων έχοντας ανάκτηση Θερμότητας έως και 72%.







